

If you'd like to know more about my work or experience at
Rev-a-Shelf, please reach out to me at shiflepy@mail.uc.edu
FINAL RENDER
Implimenting Research Fixes

IMPROVEMENTS
To improve my original mock-up concepts, I looked at other competing vanity storage compartments and thought about what would make an ideal makeup organizer.
Creating more divided compartments for specific products seemed to be ideal in other popular organizers on the market. Straying away from large open areas and selecting areas for specific products makes the shelving look more intentional.
Outside of adding dividers, the dividers themselves needed to look as sleek and modern as possible. This would include thinning them out or adversely adding acrylic to modernize the products aesthetic.
To update the organizer further, rounded edges and soft corners can create a more organic, sleek look in comparison to harsh edges that display the opposite effect.


MAKEUP RESEARCH
When researching popular makeup organizers, I realized that there were many aspects that still needed to be developed. Firstly, the separators need to be tested for height to make sure nothing falls out when the door closes.
Secondly, there needs to be smaller compartments created for lipsticks, brushes, etc. I looked at amazon, Ikea, Muji, etc. for simple ways to not over complicate storage, while keeping a minimalist functional design.
I took some measurements of generic and commonly used makeup products that many people own in order to get a general estimate of how many compartments are needed for an ideal makeup storage organizer.
Based off of just this collection of commonly used products I can gauge the ideal amount of space needed for an ideal makeup organizer. This includes how many compartments are needed and different sized spaces necessary.

VERSION 1
My first prototype CAD version was too slim to hold lots of items, but was upgraded by utilizing a top shelf and a bottom cabinet to keep things minimal.
VERSION 2
My second prototype included a thinner bottom drawer and a more secure top level with better stability. However, this model remained bulky.
PAIN POINT 1
Bulky build and thick wood. Slimming both of these aspects down would make for a much cleaner more modern aesthetic. This may also result in a lighter more spacious organizer.
PAIN POINT 2
Lack of spacial differentiation. The space between each of the plastic dividers is too small to be quickly accessible. This space could be used more efficiently in an updated version.
PAIN POINT 3
No use of specific dividers. In the updated version of this makeup organizer, I want to include more separation for specific items, such as lipstick holders or a staggered product display area.

MAKEUP ORGANIZER REDESIGN
My Second Focal Point

CONCEPT
Updating the old Rev-a-Shelf makeup organizer to create a more useful, practical, modern version, that caters more towards female needs.
DESIGN
When thinking of ways to update this product, I wanted to implement a new slim look to this previously bulky design.
I also wanted to ensure that sections would be made with mindfulness towards specific makeup items. This would ensure that there's a more specific target audience.
FINAL RENDER
Finishing One Piece of The Puzzle

ADDING STORAGE
Creating a product with individuality.
OPTION 1
Storage for toilet paper. If input next to the toilet, then a toilet paper holder would be convenient.
This would make it easily accessible and save under the sink storage.
OPTION 2
Used as general storage, such as toilet cleaner, soap, or other restroom hygiene products.
This would be a good use of space, and not have sanitary concern like option 1.
OPTION 3
Made for specifically feminine hygiene products, like pads and tampons.
However, this specific use would be a niche function marketing-wise, and generally unsanitary.
OPTION 4
Used as general storage, such as toilet cleaner, soap, or other restroom hygiene products.
This would be a good use of space, and not have sanitary concern like option 1.
BEST OPTION
Option 2 was the best choice, seeing as there wouldn't pose a possible sanitary issue. This would also be convenient for cleaning products, as they aren't used super frequently and often take up space under sinks.
DIFFERENTIATING PRODUCT
When discussing this project with Malini Suri (my mentor for this internship), we talked specifically about product differences that make Rev-a-Shelf's furntiure line unique.
Releasing products that have their own intrinsic value makes them more unique and distinct to Rev-a-Shelf.
Within that thought process, I started to ideate on how I could implement a prominent aspect into the tilt-out trashcan, that would add more value to choosing this specific model over others.

AESTHETIC
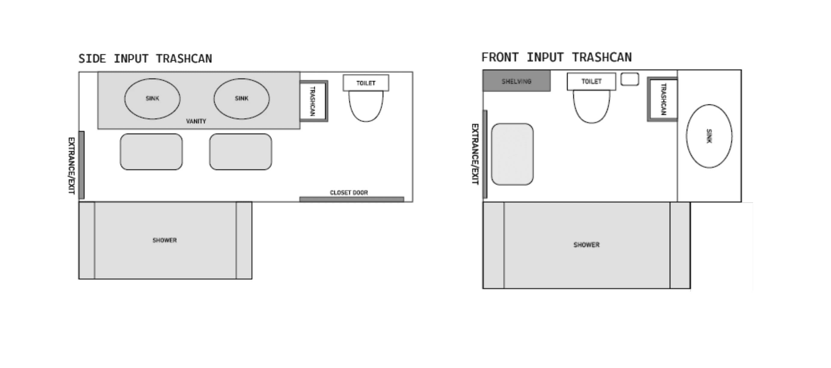
The “Side Input Trashcan” is installed at the end of a vanity (similar to my previous 3D model) in a smaller space. This can be used for space conservation in the bathroom as the trashcan will retreat into the vanity storage area.
The “Front Input Trashcan” would be installed to be front facing, again for smaller compact bathrooms that lack the space for a standing garbage can.
FLOOR PLANS
After making the pivot over to vanities, I created two examples of floor plans where a tilt-out trashcan could be best utilized.
In both scenarios the trashcans are put into places where stand alone trashcans would occupy too much space, or make a bathroom feel too compact.

VANITY SPECIFIC
Instead of focusing in on trashcans for kitchen use I pivoted towards focusing on trashcans for bathrooms. The amount of garbage accumulated in kitchens can cause too much tension on the hinge that allows the tilt.
To combat this, a smaller use vanity trashcan could be a better way to implement a tilt out. This mechanism could be built into a vanity or otherwise be attached at the end.
POST-DISUCSSION
After discussing the tilt-out trashcan concept with Wayne Robinson I learned that the reason as to why tilt out trashcans aren’t currently more popular is because it’s, 1. Not commonly used enough for release, and 2. they have issues with garbage getting stuck and then becoming inaccessible. Another issue may also be attributed to the weight of pounds of garbage making wear on the bending joints and similar issues with that weight pushing against the front cabinet.
IMPROVING AND PIVOTING
To improve and popularize this concept, it would be most useful in smaller spaces, such as installing the trashcan at the end of the vanity unit between shelving or a toilet. Could also be installed on the front of the vanity and could add convenience to thinner bathrooms. Moving forward I want to make some floor plans that would relay the convenience of having a tilt-out trashcan in comparison to a regular one. Along with this I want to make some type of solution to the issue pertaining to waste getting stuck.

VERSION 2
Within version 2, I focused on creating a different layout with shorter trashcans, including a duel set up. For kitchens, this could specifically be used for a landfill and recycling duo.
I also added small details to the frame, including a realistic counter top and an external cabinet divider. This assisted in making them idea come to life with a bit more realism.
IMPROVMENTS
In order to best improve version 2, I decided I needed to talk to the manufacturing team in order to get a better understanding of what I could improve upon.
Number 1, was that I needed to model out a pre-existing RAS trashcan to implement into my design. And number 2, I needed to rethink my application of this product in a kitchen.

VERSION 1
I started the process of CAD modeling version 1. This represents a generic starting point to understand the main aspects of creating a tilt-out product.
This includes learning how the trashcan would fit inside the frame, how tall the trashcan and frame should be, how wide the handle should be in comparison, and where to place the stopper in order to balance the weight.
IMPROVMENTS
After completing a rough mockup of the general format of the product, I focused on places where improvement was needed or necessary.
One of the main aspects I wanted to focus on was implementing a shorter trashcan to avoid it hitting the top of the frame when it's being opened. I also wanted to further experiment with formatting and changing the original silhouette.


BASE PRODUCT
The base product for this project was the Rev-a-Shelf tilt-out hamper. This was a pre-existing product released upwards of four years ago.
When looking through the Rev-a-Shelf catalog, I noticed that this silhouette hadn't been similarly used for trashcans in the kitchen or bathroom department, which inspired the creation of a tilt-out trashcan.
AESTHETIC
Looking at ways to keep this product well aligned with Rev-a-Shelf's catalog, I wanted to utilize different shades of wood. I also wanted to implement a pre-existing RAS plastic trashcan, to keep manufacturing to a minimum.
Not only did I want to keep the original look of RAS products but I also wanted to make sure there was improvement, and an obvious move towards updated future product releases.
THE VANITY PROJECT
Fall 2025 - 13 Week Internship



CONCEPT
My goal is to create a modern tilt-out trashcan that can be utilized specifically for thinner spaces where fully protruding trashcans, or standalone trashcans, are inconvenient. It will be compatible with pre-existing Rev-a-Shelf trashcans and should resemble the RAS tilt-out hamper design.
DESIGN
Modern and sleek, dark wood and silver hardware. Sturdy enough to maintain certain weighted pressure. Realistic versatile formats, such as double, single, or a duo trash and recycling combination.
Since 1984, Rev-a-Shelf has been a market leader in designing high-quality,
functional cabinet storage and organization products. From kitchens,
to bathrooms, to closets, Rev-a-Shelf redefines residential storage solutions.

PIPER SHIFLET
